品牌:SunKun(三昆)
型號:SK-206-500GDP
訂購:不限數量
價格:面議
1753480168
289604232
⒈市場部:13510246266(黃朝陽)
289604232
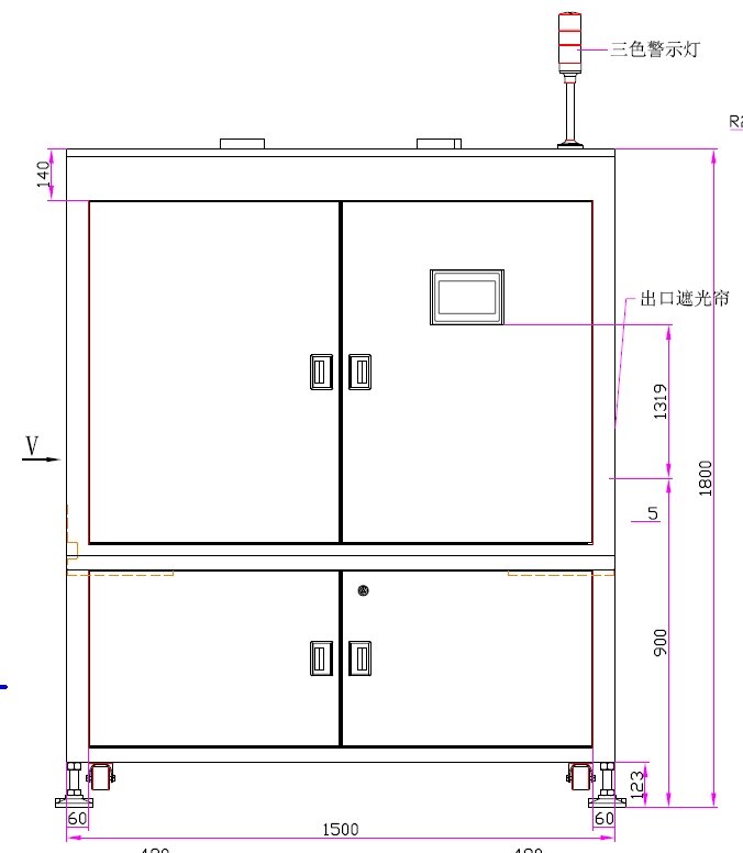
1、UV燈功率:6.0kw*2支(英國派馬)
2、UV燈總長:620mm、弧長:500mm
3、UV波段主波峰:365nm
4、人機界面觸摸屏控制
5、強弱光強調節:30%~100%(電子智能電源)
6、鈑金燈箱安裝進口插片反射器
7、UV燈高度電動調節,軌道電動調節(雷賽步進)
8、采用上排風系統
9、產品通道:出口安裝光感應開關
10、輸送材料:35B不銹鋼長銷鏈條(銷長:5mm)
11、輸送寬度:50~500mm
12、輸送速度:0.5~5m/min(觸摸屏直接讀數)
13、入口高度:上空間100mm、下空間80mm
14、電源:380VAC 50HZ
15、安裝漏電開關(安裝在電器底板)
16、電腦噴塑:以客戶提供色板為準




1、為延長設備的使用壽命,保證設備正常運行,應在開機前先做設備檢查,發現問題及時糾正。
2、開機連續運轉半小時,觀察各儀表、指示燈指示是否正常,運轉時有無異樣聲音,如發現不正常現象時,應立即進行檢查。
3、每月至少清理一次面板,檢查各部分螺絲是否松脫。
4、避免用手觸摸燈管,以防汗液、油污影響紫外光透射,若不慎沾染后可用酒精棉擦拭干凈。
5、燈管及反射罩,每月用酒精擦拭一次,保持其清潔,如果周圍環境惡劣,相應增加清理次數。
6、排氣風機應該每三個月清洗一次,清潔風葉,機殼外部及電機外表。
7、向風機各轉動部位加潤滑油,調節風閥傳動機構,緊固各接線端子,檢查風閥傳動機構是否靈活可靠、電線有無破損、電線接頭緊固是否良好。
8、如機器較長時間不用,宜將傳送網帶調松,使其處于自由狀態。
9、傳動鏈條使用一段時間后,會自然伸長,應及時調整,傳送網帶在使用過程中,由于溫度變化,可能出現跑偏現象,應及時調整。
10、保證機器各活動部位的潤滑,主被動托輥、軸承,鏈條和傳動輪應每半年上一次黃油;其他部位及電機一年一次,前后輥、托輥和傳動網咬合部分不允許使用任何潤滑脂。
11、每次使用機器后,清理污垢和塵埃,保證網帶運轉自如。
12、經常檢查機器插頭與插座接觸是否良好,如機器正常運行時,發現電纜發熱發燙,我們一定要停機,來及時的更換電纜,以免發生火災。
13、機內電氣線路不得隨意改動。出現故障,及時檢修,非專業維修人員不得擅自拆換。
1、使用機器前,請詳細閱讀說明書;
2、請勿長時間直視UV燈及發出的光源,否則會灼傷眼睛;
3、高壓電危險;
4、維修換件時注意,請關閉總電源。更換UV燈管,請放凈電容器的存電;
5、請勿將手放在傳動部位,以免發生危險;
6、試機時,核對風機的相序是否正確。
關鍵詞:UV機|UV光固機|UV燈管|UV固化機|低溫UV機|深圳UV機|手提式UV|UV烤爐|UV光固化機|隧道爐|UV固化|桌面光固機|UV設備|光固機|光固化機|uv固化燈|手提式UV機|
uvled固化機|uvled面光源|uvled線光源|uvled點光源|uv固化設備|uv固化燈管|uv光固化設備|uv固化爐|uv固化機生產廠家
Copyright © 2002-2025 深圳市三昆科技有限公司 版權所有
粵ICP備17093796號
網站sitemap地圖
網站HTML地圖
熱門TAG標簽